Im Zusammenhang mit der Baulandumlegung Luterschala geht es zügig voran: nach den jahrelangen und teilweise sehr schwierigen Vorbereitungsarbeiten konnte das im Gesetz über die Baulandumlegung geregelte, mehrstufige Umlegungsverfahren in den letzten Wochen und Monaten abgeschlossen werden. Sämtliche Bewilligungsverfahren sind abgeschlossen, sodass nun im nächsten Schritt mit den Bauarbeiten begonnen werden kann. An der Sitzung vom 4. März 2020 hat der Gemeinderat die Auftragsvergaben für das Strassenprojekt vorgenommen. Die Gesamtkosten belaufen sich auf rund CHF 2 Mio.
Das Gebiet Luterschala in Bendern befindet sich seit vielen Jahren in der Bauzone, wobei der grössere Teil dieser Bauzonenfläche noch unbebaut ist. Seit vielen Jahren waren verschiedene Grundstückseigentümer in der Luterschala immer wieder darum bemüht, für das Gebiet als Ganzes die Baureife zu erlangen. Bislang wies das Gebiet Luterschala aufgrund der Lage, Form, Grösse und Beschaffenheit wie auch des Erschliessungsgrades der einzelnen Grundstücke keine Baureife gemäss Baugesetz für eine Überbauung als Ganzes auf. Um letztlich baufähige Parzellen zu erhalten, musste aus diesem Grund, eine Baulandumlegung gemäss Gesetz durchgeführt werden.
Die Gemeinde Gamprin hat dieses Anliegen aufgenommen und verschiedene vorbereitende Massnahmen eingeleitet. Die Gemeinderäte verschiedener Legislaturperioden haben sich mit der Angelegenheit befasst und immer wieder versucht, die Angelegenheit ein paar Schritte vorwärts zu bringen. Diese Vorbereitungen waren schwierig, zäh und somit sehr zeitraubend. Das Gebiet Luterschala war aufgrund seiner Lage und der topographisch äusserst unterschiedlichen und teils sehr steilen Ausgangslage schwierig und anspruchsvoll zu erschliessen. Neben den topografisch schwierigen Bedingungen galt es auch die Ansprüche und Wünsche der Eigentümer im Umlegungsperimeter unter einen Hut zu bringen.
Die Regierung hat am 28. Januar 2020 dem Neuzuteilungsplan der Baulandumlegung Luterschala gemäss Gesetz über die Baulandumlegung die Genehmigung erteilt. Zwischenzeitlich ist auch die grundbücherlichen Durchführung beim Amt für Justiz, Abteilung Grundbuch erfolgt. Nachdem sämtliche rechtliche Voraussetzungen zur Baulandumlegung Luterschala gemäss Gesetz über die Baulandumlegung erfüllt sind, kann nun mit dem nächsten Schritt, der baulichen Erschliessung begonnen werden.
Um keine Zeit im Verfahren zu verlieren hat der Gemeinderat bereits am 2. Oktober 2019, nach vorgängig erfolgter Ausschreibung, ein Bau- Ingenieurbüro mit der Erstellung des Detailprojektes beauftragt. Nach Abschluss der Vorarbeiten wurden die Baumeister-, Belags- und Pflästerungsarbeiten nach den Richtlinien des ÖAWG öffentlich ausgeschrieben.
René Tinner vom beauftragten Ingenieurbüro sowie der Leiter Tiefbau, Kurt Berger stellten dem Gemeinderat das Projekt an der Gemeinderatssitzung umfassend vor.
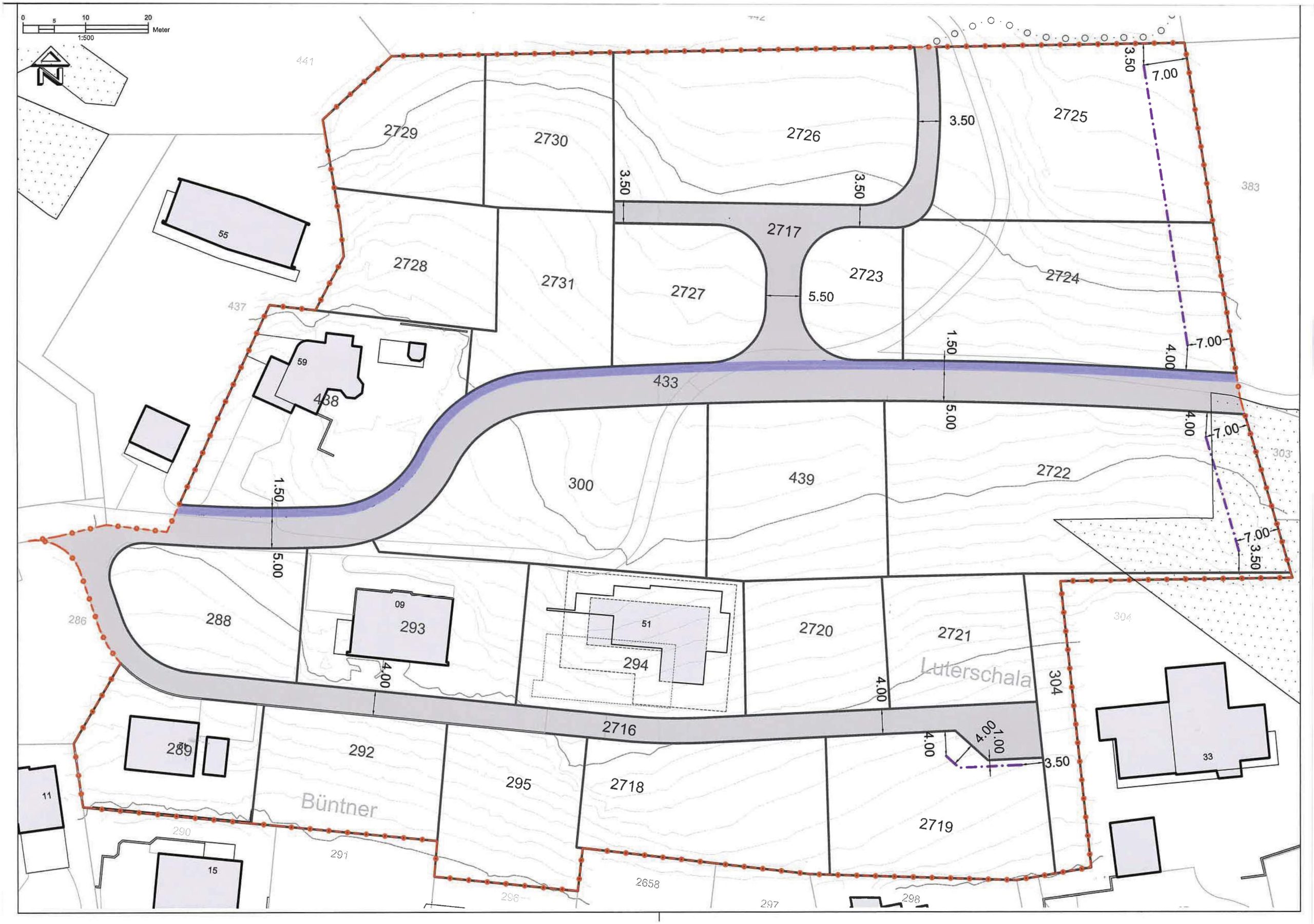
Die neue Erschliessungsstrasse wird als Verlängerung der bestehenden Strasse „Oberbendern“ fortgeführt und auch so benannt. Gemäss Festlegung der Gemeinde Gamprin wird die Strasse als Tempo-30-Zone ausgebildet. Die neue Erschliessungsstrasse weist eine Breite von 5 Meter und eine Länge von rund 200 Meter auf. Teilweise ist ein Gehweg mit einer Breite von 1.5 Meter projektiert. Die bestehende Sackgasse ist 4 Meter breit. Sie wird um 70 Meter verlängert und in einen Wendehammer münden.
Da das bestehende Terrain relativ hügelig und steil ist, werden teilweise Einschnitte und Böschungen notwendig. Jeder Einschnitt wird geprüft und wo nötig werden Stützmauern geplant, um grosse Böschungen zu verhindern. Dies nach Absprache mit den direkten Anstössern. Der bestehende Landwirtschafts- und Wanderweg (Liechtenstein-Weg Höhenweg), welcher durch das Gebiet Luterschala führt, wird auch während der Bauarbeiten begehbar sein. Oberhalb der Baulandumlegung soll der beliebte Wanderweg im nächsten Jahr eine neue Wegführung und damit verbundene weitere Aufwertung erhalten.
Die verschiedenen notwendigen Gewerke wie Mischabwasserkanal, Regenabwasserkanal, Elektro, Kommunikation und Strassenbeleuchtung werden teilweise zusammen mit Partnern (WLU, LKW) erstellt.
Die projektierten Gesamtkosten betragen für die Gemeinde Gamprin rund CHF 2 Mio., welche im Budget 2020 vorgesehen sind. Nach der erfolgten Projektgenehmigung durch den Gemeinderat am 4. März 2020 soll noch im März 2020 mit den Bauarbeiten begonnen werden. Die Arbeiten sollen bis Ende Jahr 2020 (ohne Feinbelag) abgeschlossen werden.





Du muss angemeldet sein, um einen Kommentar zu veröffentlichen.